Foto levereras av Google Street View och kan vara oprecist:

Kontor att hyra, Västerort, Finlandsgatan 48

Finlandsgatan 48, Stockholm Västerort
  • Kontor att hyra
  • 150 m2
Kontor att hyra, Västerort, Finlandsgatan 48
Finlandsgatan 48, Stockholm Västerort
  • Kontor att hyra
  • 150 m2
FÅ MER INFO OM LOKALEN
Du länkas till en annan portal, som kan kan kräva betalning eller skapande av en använderprofil

Kontor att hyra, Västerort, Finlandsgatan 48

Fastpartner
Christopher Johansson
tlf: 08-4023460
Se e-postadressxxxxxxxxxxxxxxx

PRO-HYRESVÄRD

Läs mer

Läs om hyresvärd

Fakta

  • 556951
  • Kontor
  • 150 m2
  • Inte angivet

Ljus lokal med härlig takterrass.

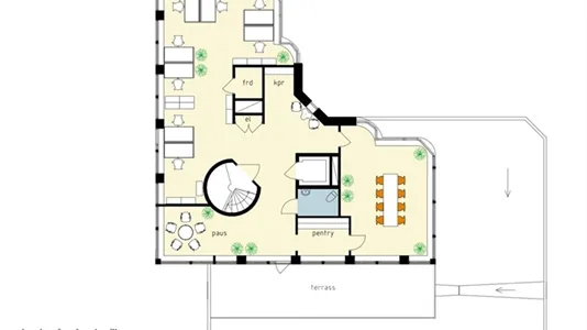
Välkommen till en fin kontorslokal högst upp i fastigheten med stora panoramafönster och en härlig takterrass.Högst upp i fastigheten erbjuds denna unika kontorslokal om 150 kvm med en generös terrass och stora panoramafönster i samtliga väderstreck. Det fria läget ger ett fantastiskt ljusinsläpp och en utsikt som skapar en inspirerande arbetsmiljö utöver det vanliga.Hissen går direkt in i lokalen, vilket ger en privat och representativ entré. Lokalen har ett separat konferensrum som lämpar sig väl för möten och presentationer, utöver öppna och välplanerade kontorsytor.En sällsynt möjlighet för företag som söker en ljus, modern och avskild kontorsmiljö med hög standard högst upp i fastigheten, med terrassen som en naturlig förlängning av kontoret.Öppen eller rumsindelatTunnelbanestationerna Akalla och Husby ligger endast fyra minuters gångväg bort. Med tunnelbanans blåa linje tar det knappt 20 minuter från T-centralen. Flertalet bussar trafikerar dessutom området.Färdas du med bil är det inga problem det heller, med bil ligger Finlandsgatan alldeles i närheten av E4 och E18. Härifrån tar du dig till Stockholm City, Arlanda och Bromma flygplatser på ca 15 minuter.Till och från flygplatserna tar ni er även lätt med flygbuss. Flygbussen finner ni närmast vid Kista Centrum. Dessa kör sträckan Arlanda Flygplats- Kista – Bromma Flygplats.Hitta hit med SLFastigheten erbjuder flera bekvämligheter för hyresgäster, bland annat restauranger som Heat, med husmanskost, och Enot, som serverar sushi, bowls och varmrätter, samt ett gym för träning under arbetsdagen.Enligt överenskommelseDet jättelika naturreservatet har du in på knuten men även närheten till Arlanda, Bromma och centrala Stockholm.

Information och data

Denna kontorlokal ligger på Finlandsgatan i Västerort. Västerort ligger i kommunen , som ligger i Stockholm. Lokalen är totalt 150 m2.