Foto levereras av Google Street View och kan vara oprecist:
Kontor att hyra, Stockholm Innerstad,
, Stockholm Innerstad- Kontor att hyra
- 160 m2
- 63 750 kr. per månad
, Stockholm Innerstad
- Kontor att hyra
- 160 m2
- 63 750 kr. per månad
FÅ MER INFO OM LOKALEN
Du länkas till en annan portal, som kan kan kräva betalning eller skapande av en använderprofil
Kontor att hyra, Stockholm Innerstad,
Fakta
- 517515
- Kontor
- 160 m2
- 765 000 kr.
- 63 750 kr.
- 4 781,25 kr.
FÅ MER INFO OM LOKALEN
Du länkas till en annan portal, som kan kan kräva betalning eller skapande av en använderprofil
Kontor att hyra i Stockholm Innerstad
En mycket ljus och fräsch kontorslokal om 160 kvm belägen högt upp i huset på fjärdevåningen på den trivsamma adressen Österlånggatan 43! Garageplatser finns tillgängliga med laddstolpe i huset!
Byggnaden är uppförd på 1960-talet och framstår därför som modern i området. Fastigheten är bland annat utrustad med luftkonditionering och vattenburen värme.
Lokalen är belägen i en fastighet på en vältrafikerad gågata med mycket rörelse. En trevlig promenadgata med gott om mysiga restauranger och caféer. På andra sidan fastigheten finner vi Skeppsbron. Goda kommunikationer till fastigheten med busshållsplats bakom huset på Skeppsbron.
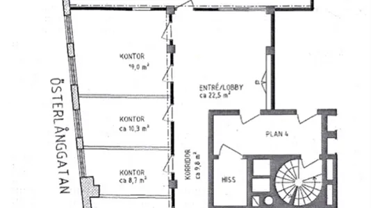
Lokalen består av en öppen yta samt tre separata kontorsrum mötesrum i varierande storlekar. I lokalens entré finns möjlighet att inreda en trevlig lounge/touchdown yta. Lokalen har ett välutrustat kök i gott skick med gott om utrymme att avnjuta lunchen på. Helkaklade våtutrymmen samt dusch finns även i lokalen.
Lokalen är i ett genomgående gott skick och utrustad med en välfungerande mekanisk ventilation, god belysning samt luftkonditionering med värme och kyla.
Yta: 160 kvm
Hyra: 63 750 kr/mån ex moms
Fastighetsskatt: Tillkommer
Group AB
Viktor Ritterstrandh
viktor@.se
Byggnaden är uppförd på 1960-talet och framstår därför som modern i området. Fastigheten är bland annat utrustad med luftkonditionering och vattenburen värme.
Lokalen är belägen i en fastighet på en vältrafikerad gågata med mycket rörelse. En trevlig promenadgata med gott om mysiga restauranger och caféer. På andra sidan fastigheten finner vi Skeppsbron. Goda kommunikationer till fastigheten med busshållsplats bakom huset på Skeppsbron.
Lokalen består av en öppen yta samt tre separata kontorsrum mötesrum i varierande storlekar. I lokalens entré finns möjlighet att inreda en trevlig lounge/touchdown yta. Lokalen har ett välutrustat kök i gott skick med gott om utrymme att avnjuta lunchen på. Helkaklade våtutrymmen samt dusch finns även i lokalen.
Lokalen är i ett genomgående gott skick och utrustad med en välfungerande mekanisk ventilation, god belysning samt luftkonditionering med värme och kyla.
Yta: 160 kvm
Hyra: 63 750 kr/mån ex moms
Fastighetsskatt: Tillkommer
Group AB
Viktor Ritterstrandh
viktor@.se
Information och data
Denna kontorlokal ligger på Österlånggatan i Stockholm Innerstad. Stockholm Innerstad ligger i kommunen Stockholm, som ligger i Stockholm. Lokalen är totalt 160 m2. Hyrespris: 765 000 kr. per år.