Foto levereras av Google Street View och kan vara oprecist:
Kontor att hyra, Vänersborg, Drottninggatan
Drottninggatan, Vänersborg- Kontor att hyra
- 112 m2
Drottninggatan, Vänersborg
- Kontor att hyra
- 112 m2
FÅ MER INFO OM LOKALEN
Du länkas till en annan portal, som kan kan kräva betalning eller skapande av en använderprofil
Kontor att hyra, Vänersborg, Drottninggatan
Vindsvåningslokaler hos – centralt i Vänersborg med utsikt och flexibilitet
Nu finns chansen att hyra kontorslokaler med ett centralt läge i Vänersborg, där ni som hyresgäst har stor möjlighet att påverka lokalens utformning. Lokalerna är i behov av renovering och anpassas i samråd med er vilket ger er chansen att skapa en arbetsmiljö som passar just er verksamhet.
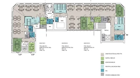
Det finns tre olika lokalalternativ att välja mellan:
- 577 kvm: En större sammanhängande yta
- 244 kvm: Mellanstor lokal
- 112 kvm: Mindre lokal med god funktionalitet
Samtliga lokaler är belägna på vindsvåning med utsikt i flera väderstreck, med vyer som sträcker sig från Vänern till Vänersborgs torg. Planlösningen kan utformas med öppna ytor, enskilda rum eller en kombination, beroende på hur ni vill arbeta.
Fastigheten är belägen på Drottninggatan, mitt i stadskärnan, med närhet till restauranger, caféer, butiker och annan service. Kommunikationerna är mycket goda. Lokaltrafik finns inom 100 meter och Vänersborgs Resecentrum med tåg- och bussförbindelser ligger endast 550 meter bort. Parkeringsmöjligheter finns i närheten, inklusive alternativ för tim- eller månadsbiljett.
I direkt anslutning till fastigheten finns även grönområden, parker och småbåtshamnen vilket skapar goda förutsättningar för utomhusaktiviteter, promenadmöten eller en stunds avkoppling under arbetsdagen.
Vill ni veta mer eller boka en visning?
Välkommen att höra av er till oss på !
Kontor
2461-
112 - 577 m2 - kontor
Hiss finns i fastigheten
- gemensamma ytor
- samtals-/vilrum
- konferensrum
- personalrum med pentry
- förråd
- kopieringsrum
- städutrymme
- hiss.
Enligt överenskommelse.
Vänersborg/Vänersborg/Vänersborg
Drottninggatan 6
1942
Poppeln 7 är en charmig och mångsidig fastighet mitt i centrala Vänersborg, med totalt 7 500 kvm kontors- och butiksyta. Här finns tre byggnader med olika arkitektoniska uttryck från 1800-talets klassiska stil till 1980-talets moderna tegelhus vilket skapar en levande och inspirerande miljö för både företag och besökare.
Två av husen har nyligen genomgått omfattande yttre renoveringar, inklusive takbyte, fasad- och fönsterförbättringar. Den tredje byggnaden (tegelhuset) står inför planerade förbättringar under 2026, vilket ytterligare höjer helhetsintrycket och fastighetens standard.
Med sitt centrala läge, närhet till torget, centralstationen och stadens serviceutbud är Poppeln 7 ett smidigt och lättillgängligt val för verksamheter som vill ha både synlighet och närhet till allt.
Fastigheten Poppeln 7 ligger i hjärtat av Vänersborg - en charmig stad vid Vänerns södra strand. Området erbjuder en härlig blandning av historiska byggnader och moderna bekvämligheter.
- Historiska byggnader: I området finns det flertalet historiska byggnader. Området har en rik historia som ger en unik karaktär till stadsbilden.
- Grönområden: För den som uppskattar naturen finns det flera parker och grönområden i närheten, perfekta för en avkopplande promenad eller en picknick.
- Service och bekvämligheter: I området finns ett brett utbud av restauranger, kaféer, butiker och andra bekvämligheter. Allt du behöver finns inom gångavstånd.
- Vänersborgs torg: Ett stenkast bort ligger Vänersborgs torg som erbjuder torghandel under helgerna, vilket ger en livlig och trevlig atmosfär med färska produkter och lokala varor.
- Kultur: Vänersborgs museum ligger också i närheten och erbjuder intressanta utställningar och aktiviteter för alla åldrar.
- Buss: Flera busslinjer stannar i närheten, vilket gör det enkelt för både anställda och kunder att ta sig hit.
- Tåg: Vänersborgs centralstation ligger bara en kort promenad bort, vilket ger smidig tillgång till regionala och nationella tågförbindelser.
- Bil: För dig som kör bil finns det gott om parkeringsmöjligheter i området, samt enkel tillgång till de större vägarna E45 och väg 44.
- Egen parkering: Intill byggnaden finns ett eget parkeringsområde med både kort- och långtidsparkering, vilket gör det bekvämt för både anställda och besökare.
- Restauranger och kaféer: I närområdet finns flera trevliga restauranger och kaféer där du kan njuta av allt från en snabb lunch till en mysig middag.
- Butiker: Fastigheten ligger nära ett brett utbud av butiker, inklusive klädbutiker, livsmedelsaffärer och specialbutiker, vilket gör det enkelt att hitta allt du behöver.
- Vänersborgs torg: På helgerna kan du besöka Vänersborgs torg, där det hålls torghandel, vilket skapar en livlig och trevlig atmosfär.
Här finns det gott om parkeringsplatser för både anställda och besökare.
- Egen parkering: Intill byggnaden finns ett parkeringsområde med både kort- och långtidsparkering, vilket gör det enkelt att ta sig till lokalen.
- Lätt att hitta parkering: Det är lätt att hitta parkeringsplatser i området, vilket gör det bekvämt för både anställda och besökare.
- Vänersborgs torg: På torget finns ytterligare parkeringsmöjligheter, vilket ger extra bekvämlighet för besökare.
Det finns tre olika lokalalternativ att välja mellan:
- 577 kvm: En större sammanhängande yta
- 244 kvm: Mellanstor lokal
- 112 kvm: Mindre lokal med god funktionalitet
Samtliga lokaler är belägna på vindsvåning med utsikt i flera väderstreck, med vyer som sträcker sig från Vänern till Vänersborgs torg. Planlösningen kan utformas med öppna ytor, enskilda rum eller en kombination, beroende på hur ni vill arbeta.
Fastigheten är belägen på Drottninggatan, mitt i stadskärnan, med närhet till restauranger, caféer, butiker och annan service. Kommunikationerna är mycket goda. Lokaltrafik finns inom 100 meter och Vänersborgs Resecentrum med tåg- och bussförbindelser ligger endast 550 meter bort. Parkeringsmöjligheter finns i närheten, inklusive alternativ för tim- eller månadsbiljett.
I direkt anslutning till fastigheten finns även grönområden, parker och småbåtshamnen vilket skapar goda förutsättningar för utomhusaktiviteter, promenadmöten eller en stunds avkoppling under arbetsdagen.
Vill ni veta mer eller boka en visning?
Välkommen att höra av er till oss på !
Typ
Kontor
Lokalnr
2461-
Storlek
112 - 577 m2 - kontor
Hiss
Hiss finns i fastigheten
Planlösning
- gemensamma ytor
- samtals-/vilrum
- konferensrum
- personalrum med pentry
- förråd
- kopieringsrum
- städutrymme
- hiss.
Tillträde
Enligt överenskommelse.
Kommun/Ort/Område
Vänersborg/Vänersborg/Vänersborg
Gatuadress
Drottninggatan 6
Byggår (Renovår)
1942
Fastighetsbeskrivning
Poppeln 7 är en charmig och mångsidig fastighet mitt i centrala Vänersborg, med totalt 7 500 kvm kontors- och butiksyta. Här finns tre byggnader med olika arkitektoniska uttryck från 1800-talets klassiska stil till 1980-talets moderna tegelhus vilket skapar en levande och inspirerande miljö för både företag och besökare.
Två av husen har nyligen genomgått omfattande yttre renoveringar, inklusive takbyte, fasad- och fönsterförbättringar. Den tredje byggnaden (tegelhuset) står inför planerade förbättringar under 2026, vilket ytterligare höjer helhetsintrycket och fastighetens standard.
Med sitt centrala läge, närhet till torget, centralstationen och stadens serviceutbud är Poppeln 7 ett smidigt och lättillgängligt val för verksamheter som vill ha både synlighet och närhet till allt.
Omgivning
Fastigheten Poppeln 7 ligger i hjärtat av Vänersborg - en charmig stad vid Vänerns södra strand. Området erbjuder en härlig blandning av historiska byggnader och moderna bekvämligheter.
- Historiska byggnader: I området finns det flertalet historiska byggnader. Området har en rik historia som ger en unik karaktär till stadsbilden.
- Grönområden: För den som uppskattar naturen finns det flera parker och grönområden i närheten, perfekta för en avkopplande promenad eller en picknick.
- Service och bekvämligheter: I området finns ett brett utbud av restauranger, kaféer, butiker och andra bekvämligheter. Allt du behöver finns inom gångavstånd.
- Vänersborgs torg: Ett stenkast bort ligger Vänersborgs torg som erbjuder torghandel under helgerna, vilket ger en livlig och trevlig atmosfär med färska produkter och lokala varor.
- Kultur: Vänersborgs museum ligger också i närheten och erbjuder intressanta utställningar och aktiviteter för alla åldrar.
Kommunikationer
- Buss: Flera busslinjer stannar i närheten, vilket gör det enkelt för både anställda och kunder att ta sig hit.
- Tåg: Vänersborgs centralstation ligger bara en kort promenad bort, vilket ger smidig tillgång till regionala och nationella tågförbindelser.
- Bil: För dig som kör bil finns det gott om parkeringsmöjligheter i området, samt enkel tillgång till de större vägarna E45 och väg 44.
- Egen parkering: Intill byggnaden finns ett eget parkeringsområde med både kort- och långtidsparkering, vilket gör det bekvämt för både anställda och besökare.
Service
- Restauranger och kaféer: I närområdet finns flera trevliga restauranger och kaféer där du kan njuta av allt från en snabb lunch till en mysig middag.
- Butiker: Fastigheten ligger nära ett brett utbud av butiker, inklusive klädbutiker, livsmedelsaffärer och specialbutiker, vilket gör det enkelt att hitta allt du behöver.
- Vänersborgs torg: På helgerna kan du besöka Vänersborgs torg, där det hålls torghandel, vilket skapar en livlig och trevlig atmosfär.
Parkering
Här finns det gott om parkeringsplatser för både anställda och besökare.
- Egen parkering: Intill byggnaden finns ett parkeringsområde med både kort- och långtidsparkering, vilket gör det enkelt att ta sig till lokalen.
- Lätt att hitta parkering: Det är lätt att hitta parkeringsplatser i området, vilket gör det bekvämt för både anställda och besökare.
- Vänersborgs torg: På torget finns ytterligare parkeringsmöjligheter, vilket ger extra bekvämlighet för besökare.
Information och data
Denna kontorlokal ligger på Drottninggatan i Vänersborg. Vänersborg ligger i kommunen Vänersborg, som ligger i Västra Götaland. Lokalen är totalt 112 m2.