Foto levereras av Google Street View och kan vara oprecist:
Kontor att hyra, Sollefteå, Storgatan 50
Storgatan 50, Sollefteå- Kontor att hyra
- 175 m2
Storgatan 50, Sollefteå
- Kontor att hyra
- 175 m2
FÅ MER INFO OM LOKALEN
Du länkas till en annan portal, som kan kan kräva betalning eller skapande av en använderprofil
Kontor att hyra, Sollefteå, Storgatan 50
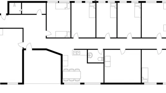
Centralt läge på Storgatan – flexibel och anpassningsbar lokal om 160 kvm
Nu finns möjlighet att hyra en trevlig och funktionell lokal om ca 160 kvm på Storgatan 50 – mitt i Sollefteå centrum.
Lokalen passar utmärkt för olika sorters verksamhet, kontor, mottagning, vårdverksamhet, eller longstay.
Lokalen erbjuder ljusa rum med stora fönster, vilket ger både ett fint ljusinsläpp och en trivsam arbetsmiljö.
Planlösningen kan anpassas efter verksamhetens behov.
Vänligen kontakta oss för mer information!
Lokalen passar utmärkt för olika sorters verksamhet, kontor, mottagning, vårdverksamhet, eller longstay.
Lokalen erbjuder ljusa rum med stora fönster, vilket ger både ett fint ljusinsläpp och en trivsam arbetsmiljö.
Planlösningen kan anpassas efter verksamhetens behov.
Vänligen kontakta oss för mer information!
Information och data
Denna kontorlokal, som även kan användas till Klinik eller Kontorshotell, ligger på Storgatan i Sollefteå. Sollefteå ligger i kommunen Sollefteå, som ligger i Västernorrland. Lokalen är totalt 175 m2.